취미목공 l 12가지 중요한 목공조인트 치수 지정
목재 구조물을 최대한 견고하고 내구성있게 만들기 위한 목공 조인트의 치수를 적절하게 지정하는 방법에 대한 포스팅이다.
목공 조인트 치수에 대한 이 정보는 내가 해외사이트, 해외 목공유튜버의 블로그, 미국과 캐나다의 목공관련 매거진 등의 서적 및 기술 표준에서 발췌한 것으로 목공 프로젝트에 도움이되는 유용한 권장 사항이라 판단하여 공유차원에서 포스팅한다.
오늘날 목공 및 목공 조인트 사진을 제공하는 많은 웹 사이트가 있지만 일반적으로 목재 부품 사이의 다양한 종류의 조인트 치수에 대한 조언을 제공하지 않는다. 다양한 목공 및 목공 포럼에서 몇 가지 힌트를 찾을 수 있지만 엄청난 양의 게시물들에 흩어져 있으며, 일일이 모으다보면 결국 한 번도 찾아보지 않는 경우가 대부분이다.
목재 구조물에 하중이 너무 많이 걸리지 않거나 무게 자체가 낮은 경우 치수가 그다지 중요하지 않다. 하지만 크고 값 비싼 자재로 고가의 공사를 하고 있는데, 목공작업 기본인 조인트 치수를 제대로 알지 못해 큰 재정적 손실이 발생할 수 있다.
목공 및 목공 조인트의 치수를 정확히 안다는 것은 확실히 중요하다. 특히 초보자일 경우 내가 제공하는 이 정보를 외워두는 것만으로도 다른 초보자가 고수가 되는 기간보다 월등히 짧은 시간안에 목공기술의 완성을 이룰 수 있다고 본다.
본 게시물이 대형 목제품을 제작하려는 취미목공인들에게 매우 유용한 정보가 되리라 믿는다.
1. 더브테일 조인트

2. 박스 조인트

3. 마이터 조인트(목심으로 강화)

4. 루스 텅 마이터 조인트 Loose tongue miter joint

5. 패더 스플라인 마이터 조인트

6. 테이블 스카프조인트

7. 코너 브라이들 조인트

8. 텅 앤 그루브 조인트

9. 슬라이딩 더브테일 조인트

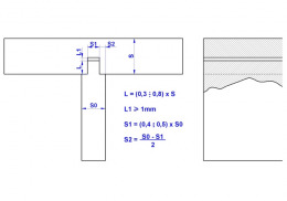
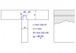
10. 텅 앤 다도조인트

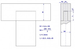
11. 장부 조인트_1

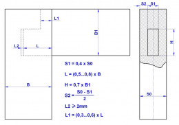
12. 장부 조인트_2
